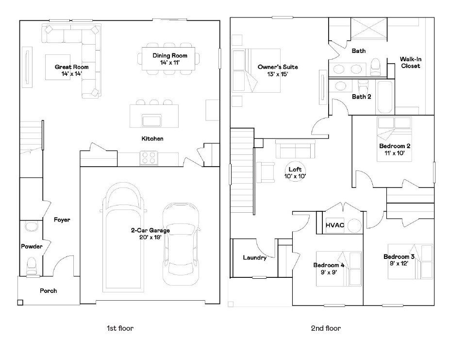
785 Moray Lane, Clarksville, Tennessee, 37043

This listing has been sold or is no longer active